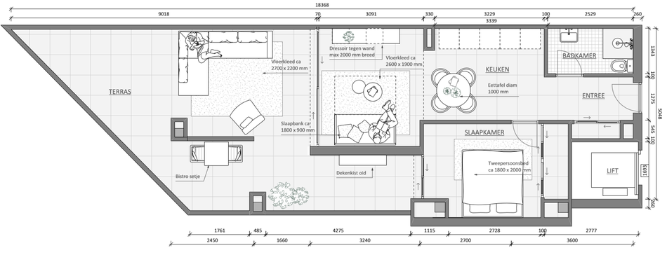
Appartement

Het ruimengerichte appartement is geschikt voor 4 personen. Er is een slaapkamer  en slaapbank aanwezig. Verder beschikt het appartement over een woonkamer, luxe keuken, moderne badkamer en ruim terras

 

De Ibiza-look van het appartement begint met de witte basis. Deze bestaat uit typische witte binnen- en buitenmuren gemaakt van leem. De structuur van dit materiaal geeft het appartement een zachte uitstraling. Het interieur kenmerkt zich door de natuurlijke materialen, zoals wollen vloerkleden, houten meubels, linnen beddengoed, tropische planten en rieten manden. De aqua blauwe accessoires geven een mediterrane, bohemien twist aan het geheel. 

 

Neem een kijkje in het appartement!